Заказать звонок Мы перезвоним Вам

Баня 30

Современная модульная баня с элегантной светлой отделкой и деревянными акцентами — идеальное решение для вашего загородного участка или дачи. Просторные окна обеспечивают естественное освещение и позволяют наслаждаться видами природы во время банных процедур, а компактные размеры делают установку возможной даже на небольшой территории. Качественные материалы и продуманная планировка гарантируют комфортное использование в любое время года, предлагая все преимущества настоящей бани в современном исполнении.

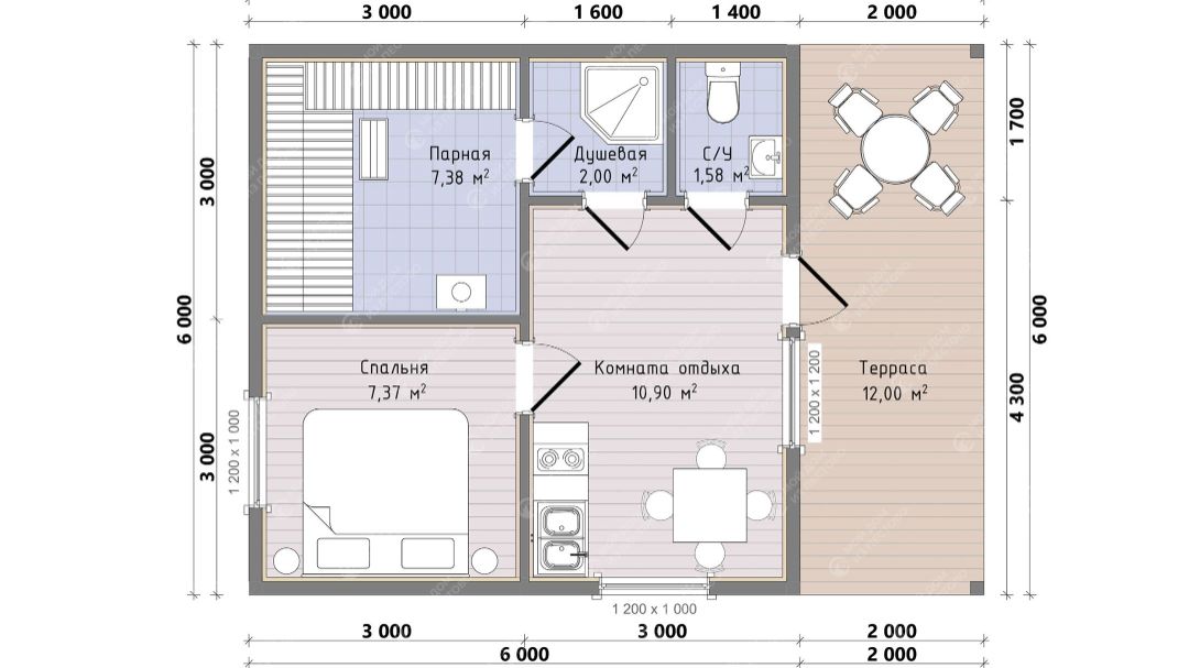
8 х 6

Габариты

5

Кол-во комнат

1 928 000 ₽

цена
Заказать звонок

Банная печь

Печь «Ермак 12»

Парная комната

  • Стены парной «обшиваются» осиновой вагонкой сорта «А» с прокладкой алюминиевой фольги.
  • Отдушина в стене.
  • Полки - двухъярусные пологи из осины сорта «А». 

Душевая комната

Слив в пол

Комната отдыха

Одна или две скамейки, стол и вешалка в соответствии с планом. 

Фундамент

Не устанавливается

Стены каркасная технология

  • Проект с каркасными стенами.
  • Каркас стен (стойки, пояса, раскосины) из нестроганой доски естественной влажности 40х100 мм или 40х150 мм, в зависимости от выбранной толщины стен.
  • Между каркасом стен и основанием дома, в местах соединения щитов каркаса прокладывается защита от продувания джутовое льняное волокно.
  • Обшивка стен снаружи – вагонка.
  • Обшивка стен внутри – вагонка.
  • Стены снаружи обработаны антисептиком. 

Стены брусовая технология

  • Проект из бруса.
  • Профилированный строганный брус с естественным уровнем влажности с внешним профилем блок-хаус или плоским с фасками - на выбор заказчика. С внутренней стороны брус плоский с фасками. Толщина бруса 100х150 или 150х150 мм, в зависимости от выбранной толщины стен.
  • По всей площади межвенцового соединения прокладывается утеплитель - джутовое волокно.
  • Сборка на металлические нагеля (гвозди).

Балки перекрытия

Доска 100х40мм. Шаг 80 см.

Перегородки

Каркасно-щитовые, обшиты вагонкой сорта «В» камерной сушки с обеих сторон.

Потолки

  • Высота потолка – 215(±5) см.
  • Потолки подшиваются вагонкой сорта «В» камерной сушки 

Кровля

Кровля - профлист.

Утепление

  • Проект с каркасными стенами.
  • Утепляются внешние стены 100 мм или 150 мм.
  • Утепляются пол и потолок 100 мм или 150 мм.
  • Устанавливается пароизоляционная и ветрозащитная пленка.
  • В моечном отделении в полу – керамзит 

Окна

  • Устанавливаются ПВХ окна.
  • Количество окон соответствует плану. 

Двери

  • Входные и межкомнатные двери каркасные 180х80 см обшитые вагонкой сорта «В» камерной сушки.
  • Двери в парную стеклянные, полотно двери 70х170 см.
  • Количество дверей соответствует плану. 

Полы

  • Чистовой пол – шпунтованная доска камерной сушки 27 мм.
  • Черновой пол – обрезная доска 20 мм, обработана антисептиком.
  • Лаги из доски 40х100 мм, шаг 70 см. 

Плинтус

Плинтус устанавливается по углам, периметру пола и потолка

Терраса

  • Терраса (если предусмотрена проектом) на опорных столбах. Терраса с перилами и балясинами, плинтусы из хвойных пород древесины.
  • Пол из шпунтованной доски камерной сушки 27 мм камерной сушки.
  • Потолок на террасе подшивается вагонкой сорта «В» камерной сушки. 

Лестница

  • Ступени у входных дверей и на террасе как на рисунке с общим видом, 200х40 мм.
  • Количество ступеней соответствует плану. 

Наружные углы

  • Зашиваются вагонкой.
  • Наличник обработан антисептиком 

Доставка

  • Доставка бесплатно 700км от г. Пестово Новгородская обл.
  • Разгрузка краном не включена в стоимость договора и оплачивается отдельно.
  • Установка бани на фундаментные блоки включена в стоимость. 

комплектация

доп. опции
к вашей бане







Сборка на участке – 150 000₽, если нет возможности установить готовую
  • Ограждение вокруг печи под заказ.
  • Выносной бак для нагрева воды 55 литров для печи Ермак – 9 700₽.
  • Бак наливной в парилке – 8 200₽.
  • Замена печи на «Ермак 16» - 22 000₽.
  • Набор веников – 4 000₽.
  • Спинка на верхней полке (доска 25 мм, осина) – 9 000₽.
  • Решетка между полками (доска 25 мм, осина) – 10 000₽.
  • Г-образные полки (доска 25 мм, осина) – 20 000₽.

Душевая комната
  • Душевой поддон 800х800 мм – 8 000₽.
  • Душевой поддон 900х900 мм – 12 000₽.
  • Душевая кабина из дополнительной перегородки, отделка пластиком – 20 500₽.
  • Отделка стен душевой пластиком, угол – 12 000₽.
  • Отделка стен душевой пластиком с трёх сторон – 25 000₽.
  • Табуретка.
Лавочка передвижная.
Фундамент на винтовых сваях.
Покраска стен снаружи – по запросу.
Перегородка каркасная – 9 000₽ погонный метр.
Высота 2.15 м
  • Дверь филенчатая – 8 400₽.
  • Дверь в парную с окном, осина – 9 800₽.
  • Дверь клиновая 700х1700 мм, осина – 7 500₽.
  • Дверь для сауны, стекло белое матовое – 12 500₽.
  • Дверь для сауны, стекло прозрачное – 9 000₽.
  • Дверь металлическая входная утеплённая, Россия – 21 500₽.
  • Дверь металлическая входная, Китай – 9 000₽.

Покраска обналички
  • Накладной замок – 5 400₽.
  • Врезной замок – 6 300₽.
  • Навесной замок – 4 200₽.
  • Резные наличники – 25 000₽.

Воплотите мечту о собственной бане прямо сейчас — наши опытные специалисты с радостью проконсультируют вас по всем вопросам и помогут выбрать идеальный вариант, который будет радовать вас и ваших близких долгие годы!

Cookie-файлы
Настройка cookie-файлов
Детальная информация о целях обработки данных и поставщиках, которые мы используем на наших сайтах
Аналитические Cookie-файлы Отключить все
Технические Cookie-файлы
Другие Cookie-файлы
Мы используем файлы Cookie для улучшения работы, персонализации и повышения удобства пользования нашим сайтом. Продолжая посещать сайт, вы соглашаетесь на использование нами файлов Cookie. Подробнее о нашей политике в отношении Cookie.
Принять все Отказаться от всех Настроить
Cookies