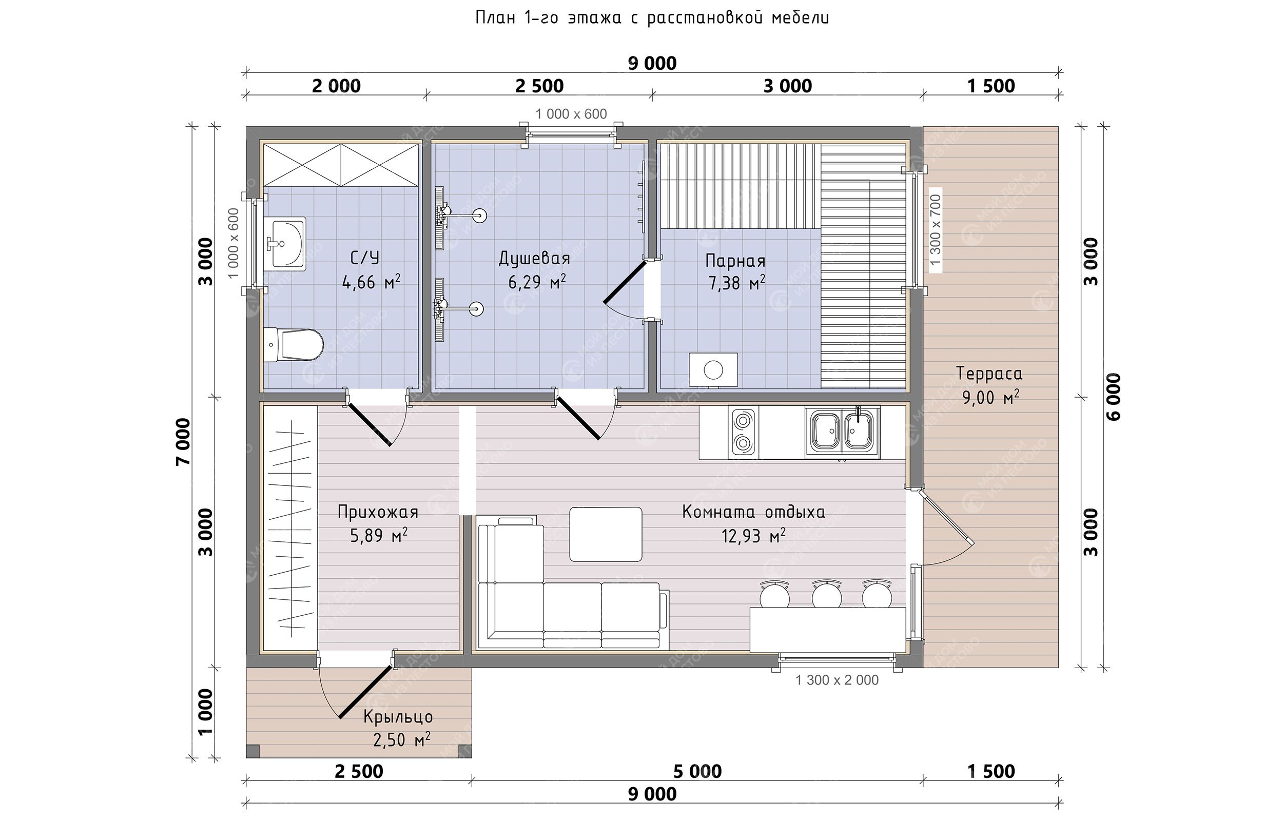
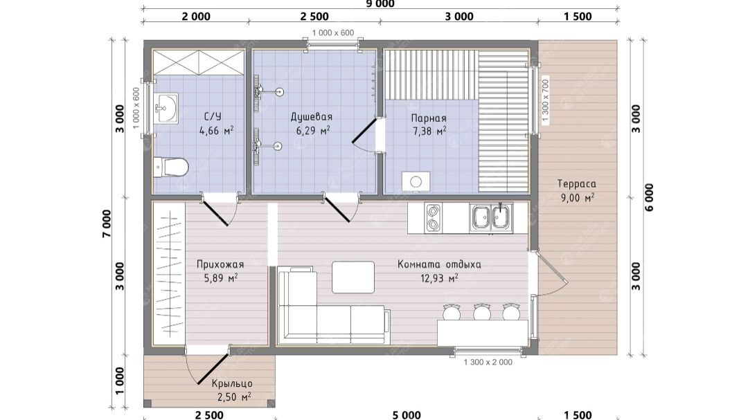
Баня 28
7х 9
Габариты
4
Кол-во комнат
2 524 000 ₽
цена
Банная печь
Печь «Ермак 12»
Парная комната
- Стены парной «обшиваются» осиновой вагонкой сорта «А» с прокладкой алюминиевой фольги.
- Отдушина в стене.
- Полки - двухъярусные пологи из осины сорта «А».
Душевая комната
Слив в пол
Комната отдыха
Одна или две скамейки, стол и вешалка в соответствии с планом.
Фундамент
Не устанавливается
Стены каркасная технология
- Проект с каркасными стенами.
- Каркас стен (стойки, пояса, раскосины) из нестроганой доски естественной влажности 40х100 мм или 40х150 мм, в зависимости от выбранной толщины стен.
- Между каркасом стен и основанием дома, в местах соединения щитов каркаса прокладывается защита от продувания джутовое льняное волокно.
- Обшивка стен снаружи – вагонка.
- Обшивка стен внутри – вагонка.
- Стены снаружи обработаны антисептиком.
Стены брусовая технология
- Проект из бруса.
- Профилированный строганный брус с естественным уровнем влажности с внешним профилем блок-хаус или плоским с фасками - на выбор заказчика. С внутренней стороны брус плоский с фасками. Толщина бруса 100х150 или 150х150 мм, в зависимости от выбранной толщины стен.
- По всей площади межвенцового соединения прокладывается утеплитель - джутовое волокно.
- Сборка на металлические нагеля (гвозди).
Балки перекрытия
Доска 100х40мм. Шаг 80 см.
Перегородки
Каркасно-щитовые, обшиты вагонкой сорта «В» камерной сушки с обеих сторон.
Потолки
- Высота потолка – 200(±5) см.
- Форма потолка - аркой.
- Потолки подшиваются вагонкой сорта «В» камерной сушки
Кровля
Кровля - профлист.
Утепление
- Проект с каркасными стенами.
- Утепляются внешние стены 100 мм или 150 мм.
- Утепляются пол и потолок 100 мм или 150 мм.
- Устанавливается пароизоляционная и ветрозащитная пленка.
- В моечном отделении в полу – керамзит
Окна
- Устанавливаются ПВХ окна.
- Количество окон соответствует плану.
Двери
- Входные и межкомнатные двери каркасные 180х80 см обшитые вагонкой сорта «В» камерной сушки.
- Двери в парную стеклянные, полотно двери 70х170 см.
- Количество дверей соответствует плану.
Полы
- Чистовой пол – шпунтованная доска камерной сушки 27 мм.
- Черновой пол – обрезная доска 20 мм, обработана антисептиком.
- Лаги из доски 40х100 мм, шаг 70 см.
Плинтус
Плинтус устанавливается по углам, периметру пола и потолка
Терраса
- Терраса (если предусмотрена проектом) на опорных столбах. Терраса с перилами и балясинами, плинтусы из хвойных пород древесины.
- Пол из шпунтованной доски камерной сушки 27 мм камерной сушки.
- Потолок на террасе подшивается вагонкой сорта «В» камерной сушки.
Лестница
- Ступени у входных дверей и на террасе как на рисунке с общим видом, 200х40 мм.
- Количество ступеней соответствует плану.
Наружные углы
- Зашиваются вагонкой.
- Наличник обработан антисептиком
Электрика
- Коробка для разводки кабеля, кабель, розетка, выключатель света. В парном отделении специальный светильник в металлической оправе с керамическим патроном.
- Провод к светильнику в парном отделении прокладывается в термоусадочной трубке (выдерживает до 180 градусов).
- Провода укладываются в короб.
Доставка
- Доставка бесплатно 700км от г. Пестово Новгородская обл.
- Разгрузка краном не включена в стоимость договора и оплачивается отдельно.
- Установка бани на фундаментные блоки включена в стоимость.
комплектация
доп. опции
к вашей бане






Доставка
Сборка на участке – 150 000₽, если нет возможности установить готовую
Банная печь
- Ограждение вокруг печи под заказ.
- Выносной бак для нагрева воды 55 литров для печи Ермак – 9 700₽.
- Бак наливной в парилке – 8 200₽.
- Замена печи на «Ермак 16» - 22 000₽.
Парная комната
- Набор веников – 4 000₽.
- Спинка на верхней полке (доска 25 мм, осина) – 9 000₽.
- Решетка между полками (доска 25 мм, осина) – 10 000₽.
- Г-образные полки (доска 25 мм, осина) – 20 000₽.
- Душевой поддон 800х800 мм – 8 000₽.
- Душевой поддон 900х900 мм – 12 000₽.
- Душевая кабина из дополнительной перегородки, отделка пластиком – 20 500₽.
- Отделка стен душевой пластиком, угол – 12 000₽.
- Отделка стен душевой пластиком с трёх сторон – 25 000₽.
- Табуретка.
Комната отдыха
Лавочка передвижная.
фундамент
Фундамент на винтовых сваях.
Основание (сани)
Покраска стен снаружи – по запросу.
Стены
Перегородка каркасная – 9 000₽ погонный метр.
Потолки
Односкатная крыша - бесплатно.
Увеличение высоты конька до +45 см – 14 500₽.
Крыша Замена покрытия на ондулин – 9 000₽.
Замена покрытия на металлочерепицу – 19 000₽.
Увеличение высоты конька до +45 см – 14 500₽.
Крыша Замена покрытия на ондулин – 9 000₽.
Замена покрытия на металлочерепицу – 19 000₽.
Двери
- Дверь филенчатая – 8 400₽.
- Дверь в парную с окном, осина – 9 800₽.
- Дверь клиновая 700х1700 мм, осина – 7 500₽.
- Дверь для сауны, стекло белое матовое – 12 500₽.
- Дверь для сауны, стекло прозрачное – 9 000₽.
- Дверь металлическая входная утеплённая, Россия – 21 500₽.
- Дверь металлическая входная, Китай – 9 000₽.
Покраска обналички
- Накладной замок – 5 400₽.
- Врезной замок – 6 300₽.
- Навесной замок – 4 200₽.
- Резные наличники – 25 000₽.
Воплотите мечту о собственной бане прямо сейчас — наши опытные специалисты с радостью проконсультируют вас по всем вопросам и помогут выбрать идеальный вариант, который будет радовать вас и ваших близких долгие годы!